

更多了解請咨詢:13818914810李小姐(微信同號)

機械隔膜計量泵NDJ系列優勢特點:
1. 偏心軸前后均有軸承支撐,摒棄了市場上大多數廠家的懸臂軸結構,使減速電機不受軸向力只傳遞扭矩,增加了減速電機的使用壽命,使工藝過程更加穩定。
2. 更簡便的安裝與維護,箱體內使用脂潤滑,方便添加,使保養變得簡單。
3. 運轉過程中可以隨意調整沖程長度。
4. PVC、PVDF、PTFE、SS316各種泵頭材質,可以適用于各種藥液的投加。
5. 超長使用壽命的純PTFE膜片,保證投加的的穩定與安全。
6. 可以直接安裝于加藥桶上,經濟方便。
機械隔膜計量泵NDJ系列型號規格表:
型號 | 流量 | 壓力 | 泵速 | 行程 | 單次沖程流量 | 膜片直徑 | 電機 |
L/h | Bar | SPM | mm | ml/stroke | mm | W | |
NDJS-40/1.0 | 40 | 10 | 87 | 5 | 9.7 | 90 | 60 |
NDJS-60/0.5 | 60 | 5 | 104 | 5 | 9.7 | 90 | 60 |
NDJS-75/0.5 | 75 | 5 | 130 | 5 | 9.7 | 90 | 60 |
NDJS-100/0.5 | 100 | 5 | 104 | 8 | 16.5 | 90 | 60 |
NDJS-130/0.5 | 130 | 5 | 130 | 8 | 16.5 | 90 | 60 |
NDJS-150/0.3 | 150 | 3 | 130 | 5 | 19.2 | 105 | 60 |
NDJL-70/1.0 | 70 | 10 | 87 | 8 | 13.4 | 90 | 90 |
NDJL-80/0.7 | 80 | 7 | 130 | 5 | 10.3 | 90 | 90 |
NDJL-105/0.7 | 105 | 7 | 104 | 8 | 16.8 | 90 | 90 |
NDJL-150/0.5 | 150 | 5 | 130 | 5 | 19.2 | 105 | 90 |
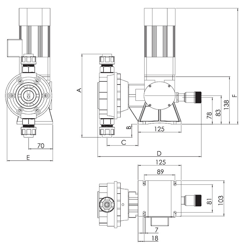
機械隔膜計量泵NDJ系列安裝尺寸圖:

李海平 客戶經理
13818914810
地址:上海市閔行區光華路188號3號廠房
電話:021-64890289
郵箱:sales@kuosi.com.cn
傳真:021-51686350
網址:www.jtsanjian.cn
